Skip to content

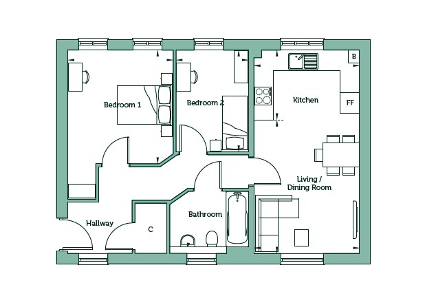
Plot 151 Bardoph House - First floor

2
1
2

£

622 Sq.ft

£75,000 (40%)

£257.81

£170.62

Charges will change if the equity share changes, see our shared ownership page for more information

**A local connection criteria applies, please speak with our sales team**

This spacious two bedroom first floor apartment is ideal for couples and first-time buyers.

Featuring an open plan living/dining/kitchen, the kitchen features a range of contemporary fitted units and includes a fridge/freezer, single oven and ceramic hob. Adjacent to the kitchen area is the living and dining area which is ideally laid out for relaxing or entertaining.

Across the hallway is a large storage cupboard. There is one double and one single bedroom, and the bathroom includes contemporary white sanitaryware and a thermostatically controlled shower with screen and full-height tiling.

Tenure: Leasehold
Length of Lease (years remaining): 125 years
Initial Ground Rent: £0.00
Annual Service Charge: £1,702.86
Service Charge Review: April (annually)
Annual Buildings Insurance: £344.54
Estimated Council Tax Band: To be confirmed

Computer Generated Image shown, plots may may have alternative external finishes, please speak to a Sales Consultant for further details. Internal photography from a similar show home and does not represent the exact layout and specification of this plot.


Interior design

Kitchen

Kitchen

  • Stylish, contemporary fitted kitchen with a range of wall and base units
  • Square edge laminate worktops
  • Stainless steel single oven
  • Ceramic hob
  • Extractor hood
  • Stainless steel microwave (to all four bedroom homes)
  • Stainless steel sink with chrome mixer tap
  • Integrated fridge/freezer
  • Removable base unit for dishwasher
  • Plumbing for washing machine to houses
  • Washing machine to all apartments and coach houses
Bathroom Cloakroom & En Suite

Bathroom, Cloakroom and En Suite

  • Contemporary Roca white sanitaryware
  • Thermostatically controlled shower over bath,
    glass shower screen with full-height tiling to bath
    (to houses with no en suite)
  • Hand-held shower with half-height tiling to bath
    (to houses with an en suite)
  • Chrome ladder radiator to bathroom and en suite
  • Shaver socket
  • Diesse wall tiles
Plumbing & Electrical

Plumbing and Electrical

  • Gas-fired central heating with combination boiler
  • Gas-fired central heating with system boiler and hot water cylinder (to all four-bedroom homes)
  • Thermostatically controlled radiators
  • Media plate TV and telephone point to living room
  • Data point to living room and up to three bedrooms
  • One double socket with USB charging to each bedroom, kitchen and living room
  • Downlighters to kitchen, utility, bathroom, en suite, cloakroom, hall and landing
  • LED under-cupboard lighting to kitchen
  • Mains-wired smoke detector and alarm
  • Carbon monoxide detector and alarm
  • PIR outside light to front and rear
  • Power and light to garages within curtilage of property
  • Electric Vehicle charging point infrastructure within curtilage of property
  • Photovoltaic panels to selected homes
Windows Doors & Internal

Windows, Doors and Internal

  • PVCu double glazed lockable windows and patio doors
  • Front door with multi-point locking, deadbolt and chrome ironmongery
  • Walls and ceilings in matt white emulsion
  • Woodwork in white satin
  • White internal doors with chrome ironmongery
  • Oak handrail to staircase
  • Vinyl flooring to bathroom, en suite, cloakroom, kitchen, utility and hall
  • Carpets to stairs, landing, living room and all bedrooms
General

General

  • Choice of Light, Colour or Wood colour palette for kitchen, bathroom and flooring finishes, dependent on build stage
  • Landscaping to front garden
  • Turf and patio to rear garden
  • 1.8m closeboard fence to rear gardens
  • Outside tap
  • 10-year NHBC warranty