Skip to content

Plot 197 Hornbeam - Semi-detached

3
1
2

£

1031 Sq.ft

£130,000 (40%)

£446.88

£56.8

Charges will change if the equity share changes, see our shared ownership page for more information

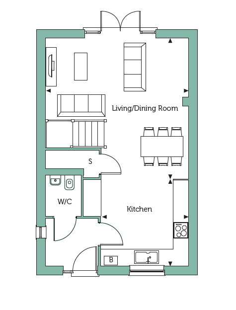
Plot 197 The Hornbeam is a contemporary three-bedroom semi-detached house featuring an open-plan layout.

The cloakroom is situated off the hallway. There's a handy cupboard under the stairs offering extra storage space.  The kitchen is fitted with integrated appliances, including a stainless-steel single oven, induction hob, extractor fan and fridge freezer.

The light and airy dining/living room area features double doors leading to the garden.

Upstairs, there are two double bedrooms, with a fitted wardrobe to the main bedroom. There is also a single bedroom and a storage cupboard on the landing.

The four-piece bathroom is fitted with contemporary Roca white sanitaryware and comes complete with a heated chrome ladder radiator. There is a separate shower cubicle and bath.

There is vinyl flooring fitted throughout downstairs and to wet rooms, and fitted carpets to stairs, landing, and bedrooms.

There is landscaping to the front garden and turf, paved patio, and 1.8m closeboard fencing to the rear garden.

This home is sold with two parking spaces.  Anticipated build completion: October/November 2025.

Tenure: Leasehold. Years remaining on lease: 990
Initial ground rent: £0.00
Annual Service charge:£339.11 
Service Charge Review Period: April (annually)
Council Tax Band: D*

Predicted energy ratings - Energy Efficiency: A (92), Environmental Impact (CO2 rating): A (92)

*Please note this an estimated Council Tax Band and it will be confirmed by the local authority on completion of the property.

Images shown are of typical Orbit show homes and are for illustrative purposes only.

The computer generated images, floor plans, and dimensions are intended for guidance only and may be subject to revision during construction.


Interior design

FF DSC 8733 LR Kitchen

Kitchen

Kitchen 

• Choice of fitted kitchen finishes with complementary laminate worktops*
• Stainless steel 1 bowl sink with chrome mixer tap
• Stainless steel 1 1/2 bowl sink with chrome mixer tap (4 and 5 bedroom properties only)
• Stainless steel single oven
• Stainless steel microwave with grill function (4 and 5 bedroom properties only)
• Integrated fridge/freezer
• Ceramic hob
• Cooker extractor fan
• Ceiling downlights
• Space for a washer/dryer

*Individual choices are subject to stage of construction. Orbit reserve the right to alter specifications without prior notice

FF DSC 8898 LR Bathroom

Bathroom cloakroom and en suite

• Contemporary Roca white sanitaryware
• Bath with shower screen and thermostatic shower mixer
• En suites with thermostatic shower mixer
• Ceramic wall tiles to selected areas*
• Heated chrome ladder radiator

*Individual choices are subject to stage of construction. Orbit reserve the right to alter specifications without prior notice

FF DSC 8748 LR Plumbing And Electrical

Plumbing and electrical

  • Gas fired central heating with combination boiler boiler (2 and 3-bedroom homes only)
  • Gas fired central heating and system boiler and OSO cylinder tank (4 and 5-bedroom homes only)
  • Digital programmable wireless thermostatically controlled radiators
  • TV point to living room and bedroom 1
  • Fibre to property (FTP) with data points to selected rooms
  • Telephone point to living room
  • Mains-wired smoke and heat detectors with battery back-up
  • Carbon monoxide detector
  • PIR light to front entrance

*Individual choices are subject to stage of construction. Orbit reserve the right to alter specifications without prior notice

FF DSC 9190 HR Windows Doors And Internal

Windows doors and internal

  • PVCu double glazed windows and patio doors
  • Compliant multipoint locking front door
  • Carpets fitted to living room, stairs, landing, and all bedrooms
  • Vinyl flooring fitted to kitchen, hall, cloakroom, bathroom and en suite
  • Walls and ceilings in super matt white emulsion
  • Woodwork in satinwood white
  • Built-in wardrobe to bedroom 1

 

FF DSC 3213 HR General

General

  • Photovoltaic panels
  • Landscaping to front garden
  • Turf and paved patio to rear garden
  • 1.8m closeboard fence to rear garden
  • Power and light to garages within curtilage of property
  • 10 year NHBC warranty